Se connecter
Se connecter

Levallois-Perret - Greffulhe - Appartement familial

Levallois-Perret (92300)
Réf : FR-1392300-7

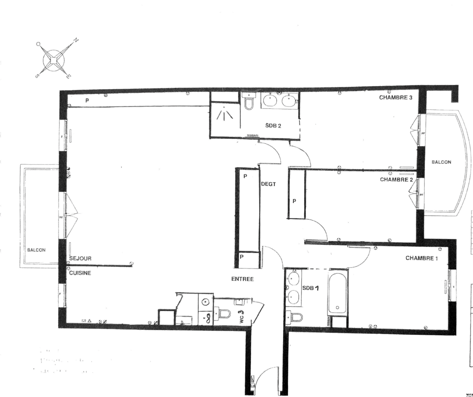
Nous vous proposons dans un immeuble récent de bon standing avec ascenseur, situé à cinq minutes du métro Anatole France, appartement au calme de 118m² Carrez en parfait état, rénové, il se compose d'une entrée, d'une cuisine équipée et aménagée ouverte sur le salon – salle à manger de 38m² avec un balcon, d'une suite parentale avec sa salle d’eau et toilettes, deux chambres, salle de bain avec toilettes, une buanderie et toilettes séparées. Plan optimisé et fonctionnel, nombreux rangements, clair et calme. Commerces, écoles, parcs et métro à proximité. Une cave complète ce bien. Possibilité de créer une 4ème chambre. Une place de parking et une cave complètent ce bien. Pour planifier une visite, entrez rapidement en contact avec Paris Vendôme Luxury - International Realty.

découvrir le bien
Prix du bien 1 199 000 €
Pièce(s) 4
Chambre(s) 3

Caractéristiques du bien

Caractéristiques Valeurs
Code postal 92300
Surface habitable (m²) 122 m²
Surface loi Carrez (m²) 118 m²
Nombre de chambre(s) 3
Nombre de pièces 4
Etage 1
Nombre de niveaux 1
Ascenseur OUI
Vue Sur Jardin
Nb de salle de bains 1
Nb de salle d'eau 1
Cuisine Américaine
Type de cuisine Equipée
Mode de chauffage Autre
Type de chauffage Radiateur
Format de chauffage Collectif
Interphone OUI
Visiophone NON
Balcon OUI
Cave OUI
Surface cave (m²) 4
Exposition Est-Ouest
Année de construction 1996

Infos financières

Caractéristiques Valeurs
Prix de vente 1 199 000 €
Les honoraires d'agence seront intégralement à la charge du vendeur  
Charges 400 €
Taxe foncière annuelle 1 930 €

Bilans énergétiques

DPE GES
Ce bien vous intéresse ?
Fieldset par défaut
Fieldset par défaut
Validation

* Champs obligatoires

Contacter l'agence
Validation
Les informations recueillies sur ce formulaire sont enregistrées dans un fichier informatisé par La Boite Immo agissant comme Sous-traitant du traitement pour la gestion de la clientèle/prospects de l'Agence / du Réseau qui reste Responsable du Traitement de vos Données personnelles. La base légale du traitement repose sur l'intérêt légitime de l'Agence / du Réseau. Elles sont conservées jusqu'à demande de suppression et sont destinées à l'Agence / au Réseau. Conformément à la loi « informatique et libertés », vous disposez des droits d’accès, de rectification, d’effacement, d’opposition, de limitation et de portabilité de vos données. Vous pouvez retirer votre consentement à tout moment en contactant directement l’Agence / Le Réseau. Consultez le site https://cnil.fr/fr pour plus d’informations sur vos droits. Si vous estimez, après avoir contacté l'Agence / le Réseau, que vos droits « Informatique et Libertés » ne sont pas respectés, vous pouvez adresser une réclamation à la CNIL. Nous vous informons de l’existence de la liste d'opposition au démarchage téléphonique « Bloctel », sur laquelle vous pouvez vous inscrire ici : https://www.bloctel.gouv.fr Dans le cadre de la protection des Données personnelles, nous vous invitons à ne pas inscrire de Données sensibles dans le champ de saisie libre.
Ce site est protégé par reCAPTCHA, les Politiques de Confidentialité et les Conditions d'Utilisation de Google s'appliquent.